




補足資料



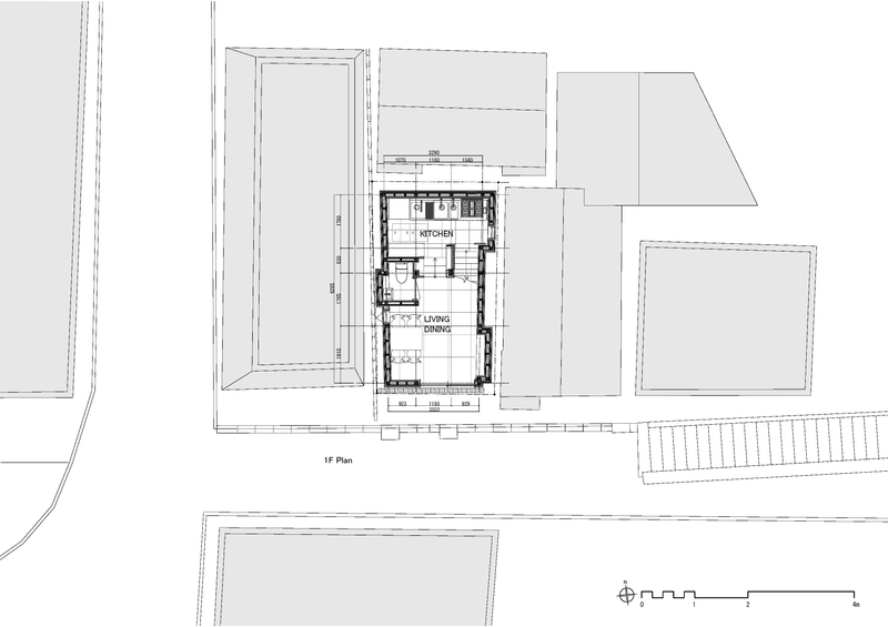
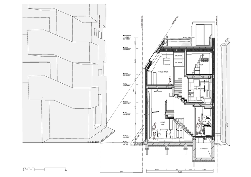
-おおきな扉の小さないえ- 東京都新宿区にある大通りから一歩中に入ると、辺りは古い住宅が軒を連ね細い路地が網目状に繋がっている。その一角で、隣地建物が境界一杯に迫った、間口約2.2間、奥行3.9間の狭小地が今回の計画地である。 計画建物は、敷地条件により耐火建築物であることが要求された。前面道路が狭あい道路であることを含め、施工性、資材搬入を考慮し、建物の躯体には耐火ボード被服による木造耐火構造の木造在来工法を採用した。小さくても外に開き人を招き入れる家にしたいという施主の想いから、安全性を保ちつつ心地よく開放された、外部へと発信する都市への棲み方を今一度デザインする事が本建築のテーマであると我々は考えた。 1階には、路地と繋がる吹き抜けを有したリビングとキッチンを配置した。階段を昇り、浴室内を通過して、子供部屋、寝室、ルーフバルコニーへと路地の延長の様に空間は連続していく。各部屋には仕切りがなく、その領域は仕上げの素材や色彩の変化によって感じることができる。ファサードを印象付けるアイアン製の大きな扉のような開口は、エントランス機能だけでなく、路地と共に空とつながり、自然光を取り込みながら空間の視覚的な広がりを得ている。この開口は、大きなテキスタイルや横引きのシャッターによって、視線や防犯、採光、熱などの段階的なコントロールが可能である。さらに開口にはLOW-E ガラスを採用しており、透過性を確保しながら断熱性能を高め、冬期の快適性も保っている。室内を歩くと、階段の狭間や2階の踊り場からアーチ状の格子のシルエットが望め、その影は時間の経過と共に変形していく。陽だまりのリビングでは、友人や隣人とのひと時を楽しむ様子がこの開口を通じて路地から伺えるだろう。ファサードだけでなく階段や手摺の素材としても採用したアイアンは、空間の広がりや軽やかさを華やかに演出する事に効果的であった。 敷地条件が厳しくとも「それでも、ここに住みたい」という施主の強い意志が、路地に大きく開いた扉を持つ小さな住宅となり実現した。この扉が、都市に棲む在り方を切り開くひとつの希望の扉とならないだろうか。
3

