




補足資料




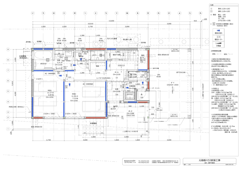
【ファサードラタン】 ー 景観と機能を両立する外壁 ー ________________________________________ 建築計画の始まり すべては「テニスコートにトイレが欲しい」というシンプルな要望から始まりました。 敷地を訪れたとき、目の前に広がる 芦ノ湖と箱根山の外輪山 の絶景に心を奪われ、この魅力を存分に生かした「絶景を楽しみながら、テニス観戦もできる別荘」を建てるというアイデアが生まれました。 ________________________________________ 涼しい元箱根での暮らし 夏の避暑地として理想的な 元箱根。標高825mのこの地は、芦ノ湖を望む緩やかな斜面に位置し、気温が1年を通じて -2℃~25℃ と安定して涼しいのが特徴です。 特に真夏でも28℃を超える日はほとんどなく、県内の他地域と比べても3~5℃低いため、芦ノ湖からの風が吹くと一層快適な環境を楽しめます。 ________________________________________ 湿気への挑戦 ― 地域特有の課題に対する工夫 元箱根の建築には大きな課題があります。それは季節によっては雲の中で生活しているかのうような多湿。 地元の建築関係者に聞くと、多湿な気候により外壁の通気層が十分に機能せず、壁体内に湿気が溜まり続けることで構造用合板の腐食するという不具合が起こると言います。特に北側の外壁や窓周りでは、一般的な通気層では空気が十分に流れないことが判明しました。 ________________________________________ 解決策 ― ファサードラタンと地産地消の木材利用 この湿気問題を解決するために採用したのが 「ファサードラタン(スノコ壁)」 です。 板張りの外壁にスノコ状の隙間を設けることで、夏の日射を遮りつつ、湿気を滞留させず外に逃がす効果を狙っています。 地元産のスギ材 を使用することで、以下のメリットを実現しました: • 特有の環境に適応した地元木材の耐久性を活かす • 自然豊かな景観に調和するデザイン • 地場産業を活用し、加工から輸送まで一貫して行うことで輸送距離を短縮 さらに、この循環型プロセスにより、建築物のメンテナンスを通じて 地元森林の持続的な管理 にも貢献しています。 ________________________________________ SE構法による開放的なピロティ空間 敷地内にあるテニスコートには、プレイ中の休憩や雨宿りができるスペースが求められました。そこで採用したのが SE構法 です。 この構法を採用することで、耐力壁がなくても広々としたピロティ空間を実現し、テニス観戦や憩いの場として活用できる、開放的な設計を可能にしました。 ________________________________________ 絶景と快適性の融合 この別荘は単なる「避暑地」ではなく、四季折々の自然を楽しみ、地域の資源を活かしながら快適に暮らせる場所を目指しています。 芦ノ湖を見渡す絶景、テニス観戦を楽しむ開放感、そして湿気対策や地産地消にこだわった環境への配慮。この別荘は、自然と共生しながら心からリラックスできる空間を提供します。
