




補足資料





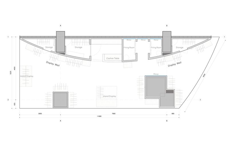
DANTON FUKUOKAは、短手2面と長手1面の計3面が通路に面し、残る長手1面のみが壁面という、3方開放の特異な区画に位置しています。店内の視認性が非常に高く、開放感のある区画である一方で、壁面が極めて少なく、空間を通じてブランドの世界観を表現するには難しさを感じる区画でもありました。 また、短手方向の両側から来る来館者の視点を考慮すると、既存のまっすぐな壁のまま内装を施してしまうと、商品やブランドの世界観が視線に引っかからず、そのまま視線が奥のテナントへ抜けてしまうことが懸念されました。そこで、店舗の印象をより強く、印象的に残すためには、何らかの仕掛けが必要であると考えました。 私たちは、唯一の壁面の両端から中央にかけて緩やかに膨らむ円弧形状の壁を提案しました。このわずかな起伏によって、左右から見た際に木の曲面と商品が視線の「引っかかり」となり、通行中の人々に対して商品と次々に出会うような体験を演出しています。 また、この展示壁の円弧形状は、コの字型の通路を行き来する来館者の動線や視線に自然と寄り添い、ふと店舗に目を向けた瞬間に、常に商品が正対するような視覚効果を生み出すことを狙っています。 加えて、この起伏した壁の内部も有効に活用しています。中央の最も奥行きを確保でき、かつ視認性の高い位置にはレジとバックヤード(BOH)を配置し、売り場でのオペレーションの利便性を高めました。また、大きな柱の裏側という奥まった場所には、プライバシーへの配慮から2箇所のフィッティングルームを設けています。左右の最も鋭角となる部分には館の設備であるPSがあるため、点検スペースとして計画しました。 このように、限られた壁面と開放的な構成を逆手に取り、ブランドの世界観と機能性の両立を目指した空間構成を提案しています。
6

