補足資料



PROJECT MEMBER
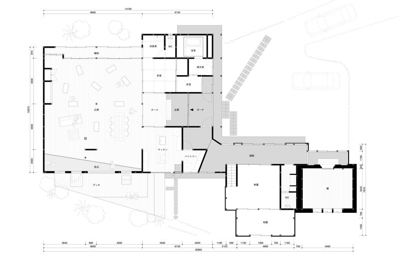
滋賀県高島市に残る古民家の改修計画である。 この地域には、合掌屋根とそれを囲う「下屋(げや)」をもつ古民家が点在し、雪の多い冬の暮らしの知恵として風景に溶け込んでいる。本計画の古民家もその一つである。しかし近年は積雪量が年々減少し、空間に求められる役割も変わりつつある。 本計画では、空き家となっていた古民家を、季節ごとに利用可能な民泊・別荘として再生した。焦点を当てたのは、長く閉ざされていた下屋の空間である。かつては雪に備えて波板で囲われていたが、現地調査から、地域では“雪囲い”の撤去が進んでいることが分かった。そこで私たちは、この空間を風景へとひらき、光を導く中間領域として再構成した。 窓辺には、座ったり、寝そべったりと、思い思いに過ごせる居場所を設えた。白く染めた地域産の木材が、石庭のようにやわらかな光を導き入れ、漆黒の広間との陰影の対比が、静かな奥行きをつくり出す。 中央部はかつて和室が並んでいたが、壁を取り払って一体の広間とし、「タンスの間仕切り」によって可変的なゾーニングを可能にした。これは建具と異なり、既存の歪みにとらわれずに設置でき、収納も兼ねる実用性を備えている。さらに床断熱と床暖房を導入し、冬季の快適性にも配慮した。 離れの蔵には三つの正方形の開口を新たに設け、最小限の操作で外光を引き込んでいる。 風土に根ざした建築を、現代の暮らしにひらき直す試みである。 住み継がれてきた時間に寄り添いながら、この土地らしさをそっとすくい上げるような改修を心がけた。
14
