補足資料



PROJECT MEMBER
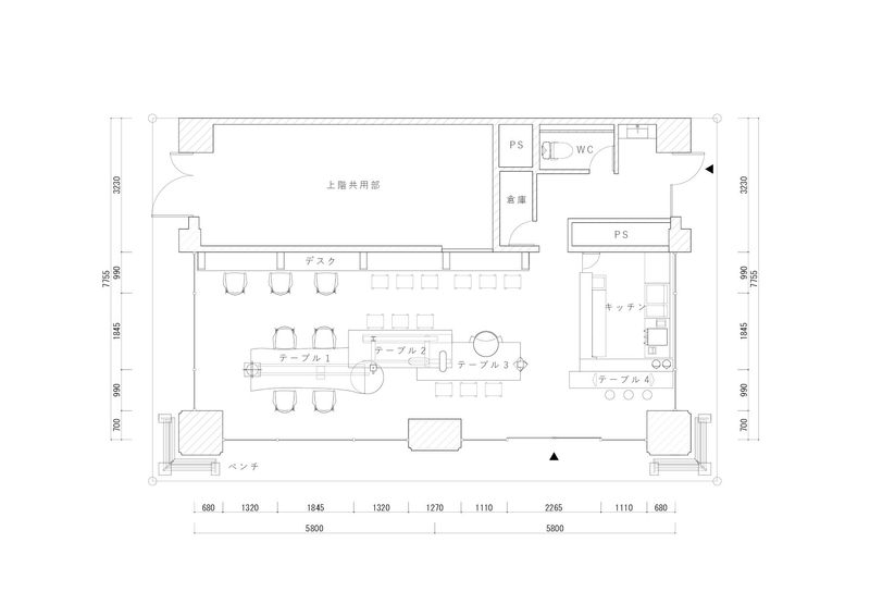
空間の用途は、自社のオフィス兼カフェであり、街に開いた空間になることを意図した。ここでは様々なバックグラウンドを持つ方々が自由にクリエイションを拡張していく風景が生まれることを目指している。誰かが持ち込んだ概念や物が、文脈なくこの場所に併置される状態を受け入れることで、予期しなかった違和感や非日常がクリエイションの原点となることを期待している。制作プロセスとしては、全体の形は検討せずに素材を集めるなかでその特性を理解しながら設計を進めた。様々なモノが脈絡なく併存するという空間のコンセプトを象徴するように、意味や文脈から検討せず素材と向き合うなかで形態を導き出し、什器として成り立たせるときに建築構造やディテールを再解釈して用いている。意味や背景に囚われず、マテリアルそのものに焦点を当てることで、物質がもつそれ自体の存在価値を模索している。
