




補足資料


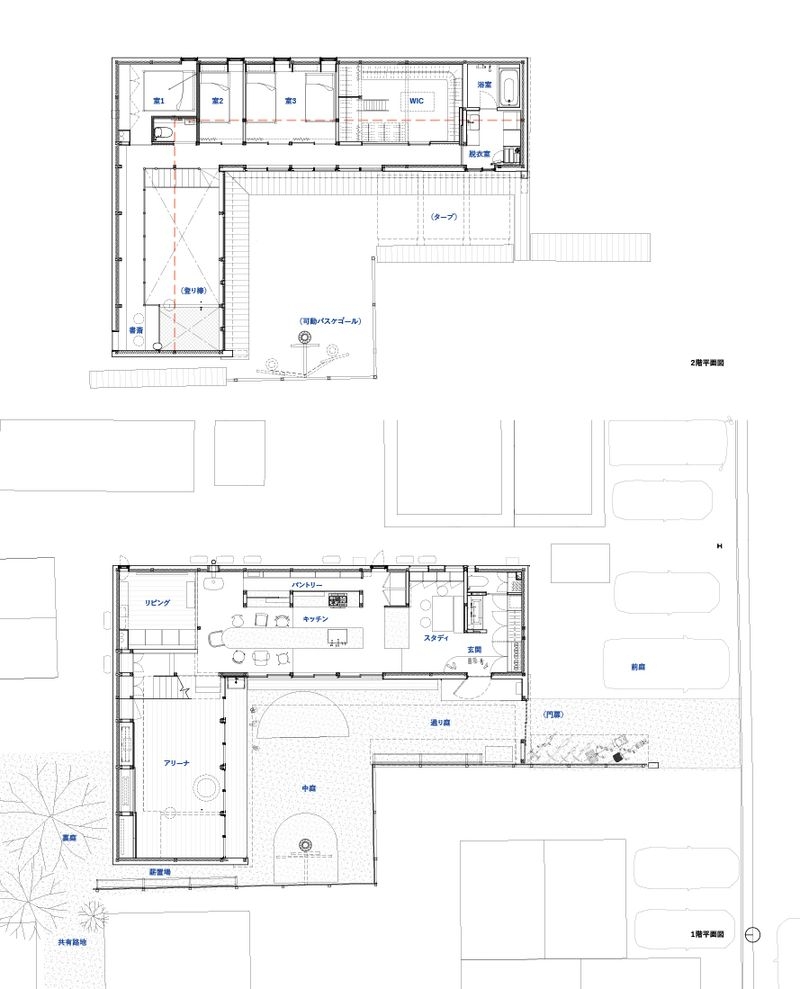
【都市と家族を包むエンベロープ】 家族の時間と建築の時間をどう折り合わせるかをテーマにした住宅です。前橋駅近くの住宅街に建ち、夫婦と5人の子どもからなる7人家族の暮らしを包み込みます。北関東特有の「からっ風」を避けるように中庭を囲む曲面の外壁をもち、その内側に体育館のような大空間「アリーナ」を配置しました。季節ごとの光や風を受け止めながら、家族の変化をおおらかに受け入れる構成です。住宅を「住むための機械」ではなく、家族と地域の時間をやわらかく包むエンベロープとして構想しています。 ・・・ 群馬県前橋市の駅周辺に建つ住宅です。前橋駅と中心市街地は少し離れており、その間を駅前にしてはのんびりとした宅地が埋めています。グリッド街区に対して住宅や事務所、たまに飲食店、と小ぶりな建築が並ぶなかで、旗竿敷地がせめぎあい、街区の中心部は接道できない宅地も生まれてきており、それらは路地状の共有地によってそのアクセスが確保されていたりします。そんな街区の中の、旗竿形状ながら86坪のやや広めな敷地に計画した住宅です。 住宅の計画において、建築そのものの時間とそこに住む人々の時間をどう折り合わせるかという課題は避けて通れず、建築は人間よりも長く存続しうる存在であり、決して安価な消費財ではありません。標準的に規定された家族像や「住むため“だけ”の機械」としての住宅が、時間を経るごとに想定と現実の間にギャップを生み出してきました。相続による分割も拍車をかけ、身の丈に合った住宅像が固定化し、住宅を住宅らしく作ることの閉塞感は住宅の短命化に拍車をかけているように感じます。 まずは、街区に潜む獣道のような共有地や路地の延長線上の「たまり」として中庭を位置づけました。この中庭を囲うように、北関東地域特有の冬季の季節風である「からっ風」から守る曲面をもつ壁を配置します。この壁の内側に身を寄せるように中庭と一体的になったアリーナや諸室を並べました。季節に応じた光の入射角をふまえた庇は、立面を分割し建具が過大になるのを避け、中庭に対して徐々に庇がおりていってすり鉢状となることで、街区の奥の中庭でも大きな空を感じることができます。曲面壁の裏地としての内部仕上げはラワン合板の下見板張とし、書棚に並ぶ本や華奢な手すりとともに、無機質でシームレスな外観に対してスケールを落としています。 設計を進めていく中でも家族の形は変わっていきました。当初は予期していなかった5人目の子供が生まれ、中学生の長男は反抗期を迎えます。常に変化する住まい方に対して、それを受け入れる建築のおおらかな全体が都市の部分として定着してくれば、この住宅は読み替えられながらも生き続けていけるはずです。 (宮崎晃吉) ・・・ 検討の過程では、大家族が共に過ごす空間の気積と、適度な距離感がとれることの2点に留意しました。空地率の高い周辺状況に対し、初期段階では視覚的、環境的な繋がりを点在させることで7人がのびのびと過ごす空間イメージを探っていましたが、まだ幼い子供たちを見守る視点の重要性や、彼らの有り余るエネルギーを目の当たりにし、最終案では中庭を核とするより大胆な空間構成にシフトしています。その後、わずか3畳半に抑えた個室の間仕切りをガラス引戸+カーテンとすることによる音と視線の調整、大空間の空調負荷を軽減する熱循環ダクトによる気候調整、パントリーや家具配置、運動器具をつかった複数経路の形成、床・天井レベルの変化による一室空間の体験的な分節など、内部の設えによって、住人同士の心地よい距離感が保たれるよう配慮しました。 (久保田啓斗)


