
補足資料




PROJECT MEMBER
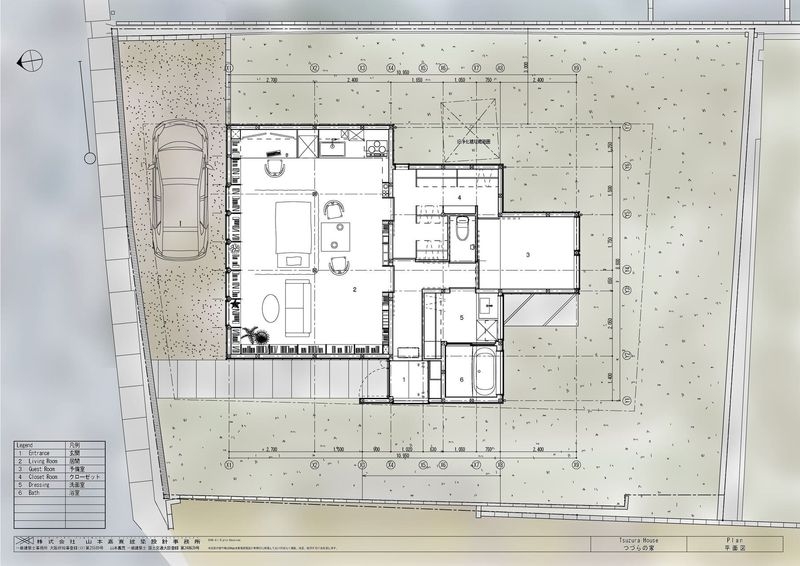
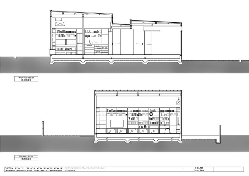
郊外の広い敷地に計画した大人一人暮らしのためのとてもコンパクトな家です。機能的な生活動線と収納量の確保のために就寝・食事・仕事・遊びといった日々の生活の場を集約した大きな筐(はこ)をつくり、カーテンで柔らかく性格付けしました。それに連なるように、水廻りとクローゼットを納めたサーバントスペース、来客や将来ご両親との同居を想定したゲストルームを組み合わせ、大・中・小3つの筐体が重なり合う建物となりました。それを敷地のほぼ中央に置き、周辺の雑多な環境と間合いを取りました。延べ20坪で1.5階分の平屋、高気密高断熱で窓の少ない外観、隣地から大きくセットバックした配置はこれからの郊外での住み方を示しているようにも思われます。
