
補足資料


PROJECT MEMBER
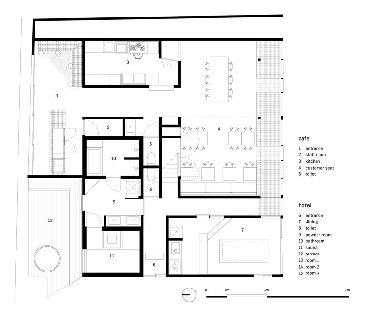
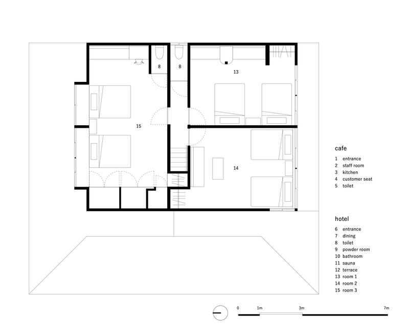
三井不動産グループが多種多様なくらしのあり方を提案する ”n’estate” の拠点として、京都嵐山に半世紀以上前に建てられた古民家を一棟貸しの民泊とカフェにリノベーションするプロジェクトである。時代や住まい手の変化への対応で何度も改装が重ねられ、地層のようになった壁床天井を剥がしながら間取りを整えた。民泊とカフェの事業主体が異なることから内部での行き来はできない構成となっているが、両エリアの気配を感じさせる内部の開口やマテリアルのトーンを揃えることで一体的な施設として設計をしている。民泊の3つの宿泊室はキーカラーを定め、それぞれの部屋の形状や環境に合わせてトーンを変えることで、共通の素材を使用しながらもそれぞれの部屋の特徴を引き立てている。浴室に計画したサウナは茶室の炉のようにストーブを囲む構成とし京都の文化との接点を持たせた。カフェは人通りの多い前面道路から手入れが行き届いた立派な庭へ通り抜けるように動線を計画した。庭に面した縁側はタイルで仕上げ直し、ディスプレーや補助的な客席、イベント時のステージなど多目的な使い方ができる余地を残した。縁側のカフェと民泊の境界に設けた開口は両エリアの視線の抜けと広がりを確保し、民泊とカフェの分断を和らげている。立派な古民家の佇まいを尊重し既存部分を再利用しながら、現代的な用途を歴史ある地域の空気感と共に再構築した。
