補足資料


PROJECT MEMBER
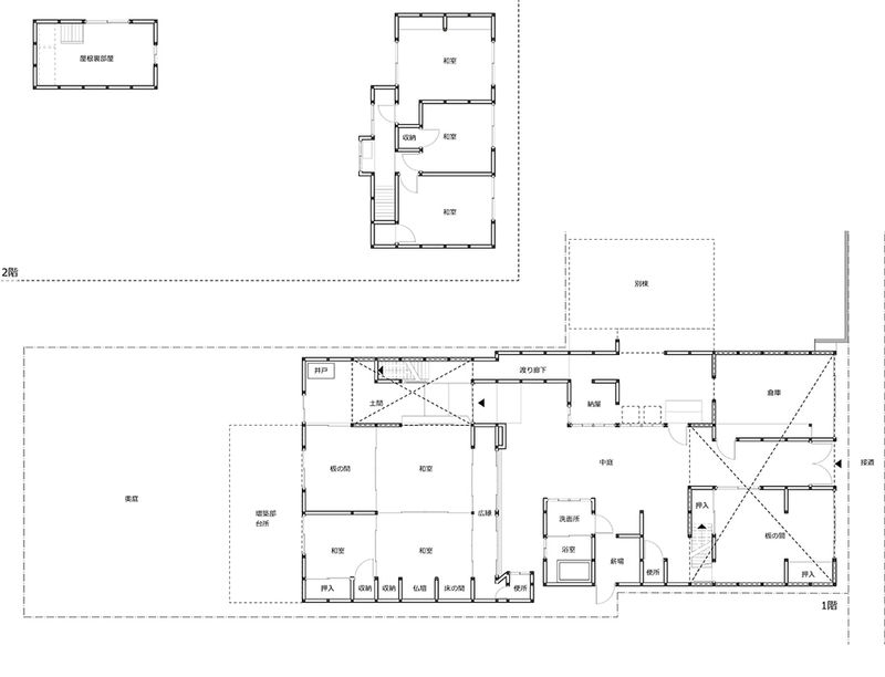
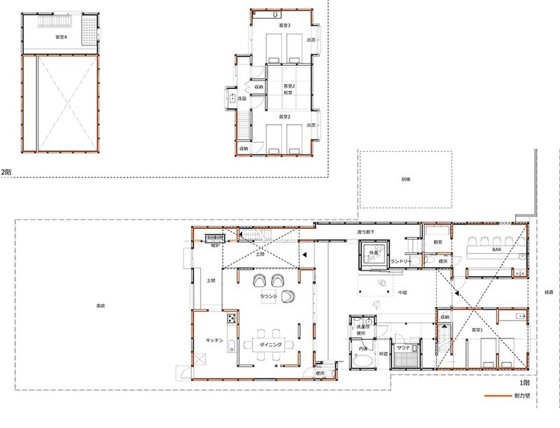
香川県小豆島に南北朝の攻防戦に備え意図的に造られた「迷路の街」がある。細く入り組んだ路地からは奥が見えない高揚感がそこには漂っている。そこに築100年を超える古民家を民泊へと変容させることで「迷路の街」全体の活性化の拠点を創出する試みである。日本家屋形式である中庭と奥庭を活かしながら現代的にデザインを昇華させ「距離感」をテーマに再構築した。 小豆島に訪れ、宿泊するなら都会の喧騒を離れ、上質な空間で、綺麗な海を見ながら静かな時間を過ごすという非日常体験が主流であるが、ここにはそれは一つもない。 迷路の街に漂う風土に溶け込み短い宿泊期間でも堪能できる洗練した日常空間を目指した。 一棟貸で10人まで宿泊できるこの宿はどこにいても気配を感じることが出来、集まって住むという本来の家族の姿を体現できる。「距離感」という考えを大切に、機能や間取り、動線や視線が緩やかに分節しながらも緩やかに繋がる曖昧な距離感こそ日常の延長だと考える。木、土、石、紙という自然素材で覆われたやさしい空間はどこか懐かしくもあり、築100年のもつ歴史と調和しながらも居心地の良い「削ぎ落とすもてなし」は日本人のもつ感性を蘇らせてくれるであろう。 既存建物の骨格は維持し、中庭を緩衝領域と捉え水廻り機能を分散して配置し、近隣から見られることもなく中庭でのプライバシーを順守した。母屋には通り土間を拡張し、外国人旅行客にも楽しめるよう下足スペースを大きく確保した。客室は合計3部屋を確保し、コネクティブルーム対応とすることで和室を介して一体利用も可能とした。また、接道から一般客も利用可能なバーを新たに開業し、宿泊者と島民とのコミュニケーションの場としても活用でき、島の情報拠点の一部として街に存在するであろう。
