




補足資料





PROJECT MEMBER
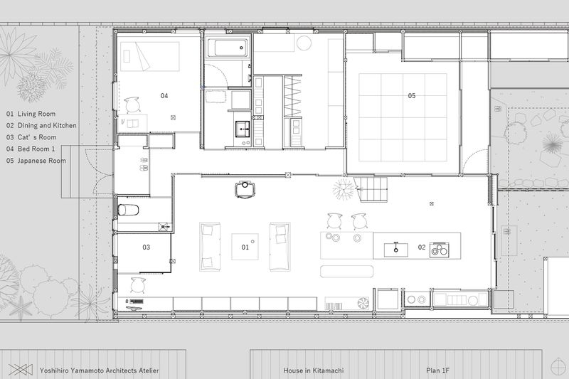
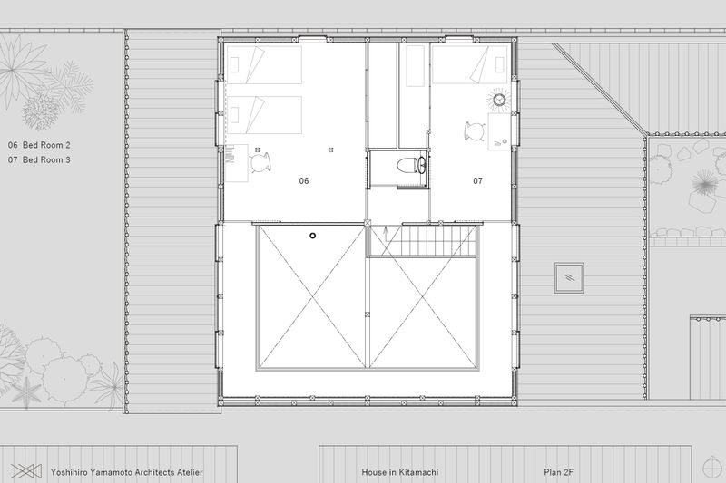
奈良市内にある古い住宅。敷地内には色々な年代の建物が濡れ縁や中庭を介して連なっています。その中で一番古くて大きな納屋を、快適な生活が送れる住まいへ改修する計画です。納屋は元々材木倉庫として建てられたため半分が大きな吹き抜けとなっていて、大部分が吹きさらしの状態でした。劣化して柱梁から剥離した大量の土壁を全て落とし、蟻害・腐朽を受けた柱梁を補強・交換し、断熱補強を行った上で、吹き抜けを大きなLDKに転用、その周りに来客用の和室、寝室、水廻り、収納、猫の部屋を整備しました。

