
補足資料





PROJECT MEMBER
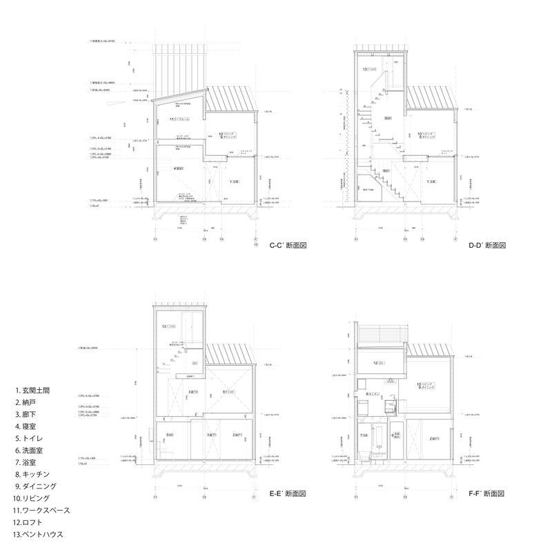
東京郊外の都市公園に隣接する閑静な住宅地に建つ、木造2階建ての住宅である。(プロジェクト名にあるSAは夫妻の名前の頭文字から名付けています) 本計画は、施主と共有した「緑のトンネルを住まいの中心に据える」というイメージを起点として、まずその実現が可能な敷地の選定からスタートした。北側に広がる都市公園の豊かな樹林の緑を取り込むことのできる本敷地では、緑景を最も大きく享受できるよう、最大幅の開口部を設けて風景を室内に導き入れることを設計の主題とした。 1階には周辺からの視線を考慮しつつ居室と水回りを配置し、緑への眺望を最大限生かすため、2階にリビング・ダイニング・キッチン等の生活の中心となる諸室をまとめている。照明計画においては、施主の要望を踏まえ、1・2階とも居室の照明を調光・調色可能な仕様とし、木架構や白色塗装の天井仕上げに配慮して器具位置を検討した。また、廊下・階段には自動センサーによる照明を採用し、日常動線と衛生面の双方に寄与させている。 2階のリビングとダイニングの間には、ホワイトオークの子上がりを設けて床レベルに差異をつくり、ゆるやかな曲面壁と合わせて空間的な連続性とシークエンスを意図した。さらに、床レベルを変えた主人の書斎を挿入することで、外部環境と生活空間、執務空間が緩やかに関係し合う構成として、各床の見切にはアルミのアングルを簡素に設えた。 外装にはシルバーのガルバリウム鋼板を採用し、対して内装は白の塗装を基礎にオークやシナ等の木材とで統一し、室内においても自然の質感を感じられるよう意図した。公園側へと開く屋根形状と、それに呼応するように連続する木梁天井、柔らかな曲面によって構成された壁面など、有機的な造形物を随所に取り入れることで、建築と自然環境との融合を図っている。
