




補足資料

DATA
- ビルディングタイプ
- パビリオン・イベントブース
- 構造
- 鉄骨造
- 工事種別
- 新築
- 延べ床面積
- 655.46㎡
- 竣工
- 2025-02
CREDIT
- 撮影
- 阿野太⼀ / 楠瀬友将
- 設計
- NOIZ
- 担当者
- 豊田啓介 / 蔡佳萱 / 酒井康介 / 平井雅史 / 笹村佳央(元所員)
- 施工
- フジタ‧⼤和リース特定建設⼯事共同企業体
- 構造設計
- Arup
- 設備設計
- フジタ
- 展示内装設計・施工
- 乃村工藝社
- 膜素材開発
- 太陽工業
- プロデューサー
- 落合陽一
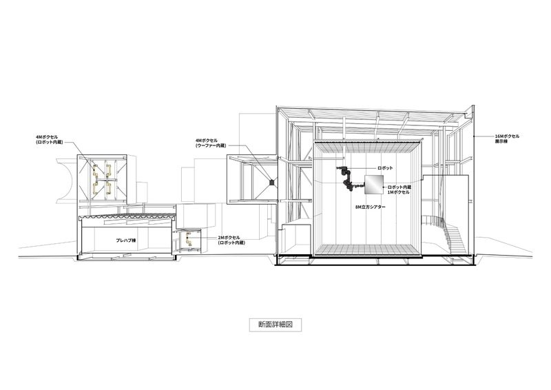
大阪・関西万博2025のシグネチャーパビリオンの一つであるnull²は、金属的で硬質な印象と、柔らかく可変的な性質が共存する建築をデザインテーマとしています。 ネットワーク化が進み、価値観が多様化した現代において、わざわざ現地に足を運ぶことの価値を問い直し、本計画では、広く薄く体験を提供することに長けたバーチャル空間と、身体的で濃密な体験をもたらすフィジカル空間のそれぞれの特性を肯定したうえで、両者をつなぐ「接空間(Interspace)」としての建築の役割を考えました。 本パビリオンは、デジタル空間で用いられるボクセル(Voxel)という低解像度の空間単位を建築の構成要素としています。誰でも編集や再解釈が可能な構成とすることで、バーチャル空間上で自分なりのパビリオンをつくり、それをARなどを通して現地体験と重ね合わせるなど、多様な参加や二次利用を許容し、次世代の建築のあり方を探っています。設計者と利用者という従来の関係を超え、誰もが自分なりの関わり方で参加できる建築体験を目指しました。 また、本計画では、より直接的な意味での「動的な建築」にも挑戦しています。フレームと可変性の高い膜による構成は、短期間での設計や条件変更、会期後の再利用にも柔軟に対応します。外装に用いた高反射の鏡面膜は、金属的な質感を持ちながら、風によって呼吸するように振動し、周囲の空や景観を歪ませながら映し出します。さらに、ウーファーやロボットアームによる制御によって膜面は文字通りヌルヌルと変化し、あたかも一個の生命体のように、周辺環境や人とインタラクションを行います。 鞍型やホルン型の鏡面、そしてボクセルの立体的な構成が生み出す無数の鏡は、空中に浮かんだ多数の窓が異なる世界を切り取り、映し込み、重ね合わせているかのような効果を生み出し、パビリオン自体が無数のパラレルワールドが交錯する「接空間」として機能し始めます。物理世界とバーチャル世界、人とアバター、現実と異世界が重なり合う体験を通して、万博の本来のテーマである「異世界との出会い」を一貫して表現しています。
21

