




補足資料


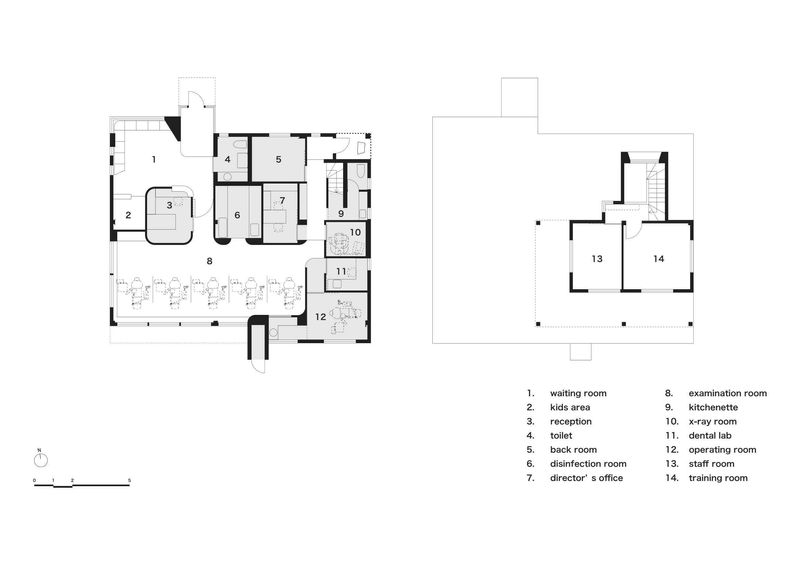
半世紀ほど前に建てられた歯科医院を改修するプロジェクトである. 敷地は福岡市東区香椎, 立花山や三日月山の麓であり, 周囲の風景や街並みが変化し続ける郊外住宅地に位置する. その中で長い時間この地にあり続けてきた建物を, 変わらない地形と見立てた. この地形としての量塊を掘り, 穿つことで, 利用者のための居場所をつくり, 土に包まれた落ち着きのある空間とした. 待合や診察室からは共に時間を重ねてきた庭の樹木や, 変わり続けるまちの風景を望む. その一方で, 土の内部には消毒室やカウンセリング室など, プライバシーが求められる機能を集約した. 歯科医院では利用者が上を向いて過ごす時間が多いため, 天井に掘り込みの照明を設え, 眩しさを抑えた柔らかな光環境を計画した. 天井面よりも深い位置から注ぐ光は, トップライトが穿たれているかのように, 外部とのつながりを感じさせる. 香椎の山々が赤土によって構成されていること, また既存建物に施されていた赤土色の外観を手がかりに, 内外装とも赤をベースとした落ち着きのある色彩を選定した. 外部には地場の赤石を用い, 洗い出しや砕石, 砂利など多様なテクスチャを重ねている. 土地の記憶を静かに引き継ぐこのクリニックが, これからも地域の健康の拠り所となることを願っている.



