
補足資料




PROJECT MEMBER
DATA
- ビルディングタイプ
- その他オフィス・企業施設
- 構造
- 鉄骨造
- 工事種別
- 新築
- 延べ床面積
- 317.4㎡
- 竣工
- 2025-04
CREDIT
- 撮影
- ARCREC株式会社 東涌宏和 / 青木心平
- 設計
- 青木建築設計事務所
- 担当者
- 青木 心平
- 施工
- 丸正青木建設
- 構造設計
- 青木建築設計事務所
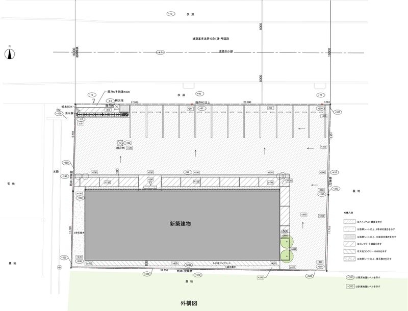
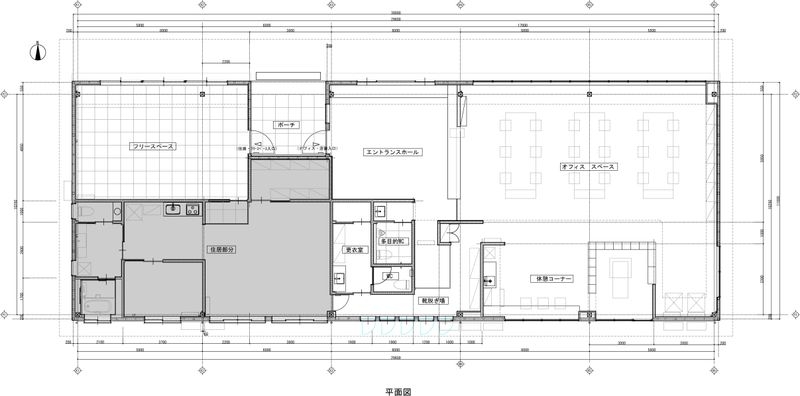
栃木市の市街地と田園地帯の境界に建つ、社員数約15名のガス供給会社の新社屋である。建物は全体の約3分の2を店舗・オフィス、残りを住宅とする用途構成となっている。 新規採用が難しい業界背景の中で、施主からは「オフィスらしくなく、働きたいと思える社屋」という要望があった。これを「居心地の良さと、仕事に向かう緊張感が共存する空間」と解釈し、外観は周辺環境を読み取った簡素で間口の広い形態とし、内部は自然素材を用いながら空間にメリハリを持たせる計画とした。 外観は、前面道路からの圧迫感を抑えるため平屋建てとし、周辺の田園風景に点在する牛舎や豚舎などの素朴な建築を参照した切妻屋根のプロポーションとしている。北側のエントランスファサードは、建物の重厚感を軽減するため基礎を片持ちとし、構造的・経済的合理性の範囲で地面から浮かせることで、軽やかな印象を与えている。 内装計画では、通常のオフィスでは採用されにくい勾配天井を積極的に取り入れ、美術館や店舗のような開放感を持つ空間を目指した。勾配天井の頂部にはハイサイドライトを設け、木製ルーバーを介して柔らかな自然光が室内に行き渡るよう調整している。南側に配置した休憩コーナーからは季節によっては稲穂を見ることが出来る。 内装仕上げには、クリーンエネルギーを扱う施主の理念を反映し、再生材である硬質木毛セメント板、使用済みコーヒー豆を原料としたセメント板(SOLIDO)、天然木を組み合わせて使用した。特に天井に用いた硬質木毛セメント板は、耐火性・耐朽性・断熱性・調湿性・吸音性に優れ、オフィスに求められる機能を十分に満たす素材として採用している。 オフィスの使い方については、当初フリーアドレスの要望が強かったが、業務内容を丁寧にヒアリングした結果、全面的なフリーアドレスは運用上不適切と判断した。一部にフリーアドレス的なスペースを設けつつ、基本は固定席とすることで、業務効率と柔軟性の両立を図っている。 設備計画では、省エネ基準を上回る断熱性能を確保し、高断熱住宅並みの性能とした。空調には住宅用壁掛けエアコンとガスファンヒーターを採用し、施主が自社で維持管理できるよう、配管経路や点検性を設計初期から考慮している。オフィス床下には50cm以上の懐を確保し、将来的な間取り変更にも柔軟に対応できる計画とした。屋根にはソーラーパネルを設置し、浸水を考慮して室内に蓄電池を設置した。蓄電池により普段の照明及び災害時の空調を使用できるようにしている。また外部に非常時に接続できるガス配管を設置しており、社員の万一の被災時にも事務所スペースの暖房が使えるようにしている。 照明は、当初のダウンライト案からダクトレール方式へと変更し、運用の自由度を高めた。勾配天井対応の器具選定には苦慮したものの、JISで求められる照度は十分に確保している。実際の運用では自然光が非常に豊かで、手元灯以外の照明はほとんど使用されていない。 構造は、施主が過去に水害を経験していることから鉄骨造を採用した。各スパンを同一架構とするシンプルな構造計画とし、施工性とコストの両立を図っている。また床レベルを外構仕上げより高く設定することで、水害時にも迅速にガス供給業務へ移行できるよう配慮した。 結果として、地方の中小規模オフィスとして、コスト・働き方・将来更新性のバランスが取れた建築となり、完成後には新規採用にも良い効果をもたらした。
