補足資料





PROJECT MEMBER
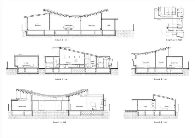
台湾の住宅地に浮かぶ木造大屋根 森林資源の価値を示す、CLTとGLTを活用した住空間〈Our Forest〉 1.台湾における新技術・新素材「GLTとCLT」による木造大屋根 2.大屋根の下にさまざまなものが集い、融合するコンセプト「1つ屋根の下」 3.台湾での森林資源の価値を再認識させるランドマーク的プロジェクト 4.複雑な幾何学と接合部の設計・施工精度を支えるデジタル設計





PROJECT MEMBER
台湾の住宅地に浮かぶ木造大屋根 森林資源の価値を示す、CLTとGLTを活用した住空間〈Our Forest〉 1.台湾における新技術・新素材「GLTとCLT」による木造大屋根 2.大屋根の下にさまざまなものが集い、融合するコンセプト「1つ屋根の下」 3.台湾での森林資源の価値を再認識させるランドマーク的プロジェクト 4.複雑な幾何学と接合部の設計・施工精度を支えるデジタル設計