
補足資料


PROJECT MEMBER
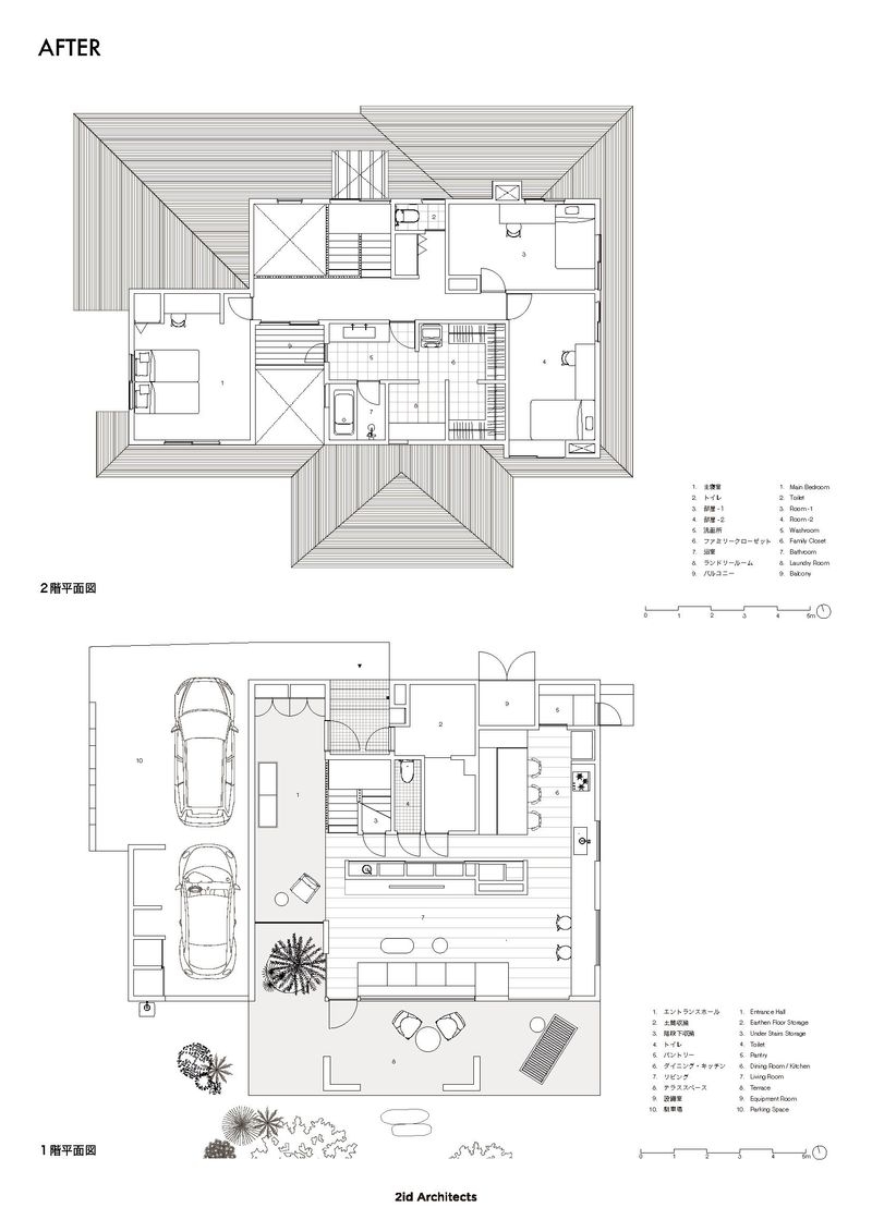
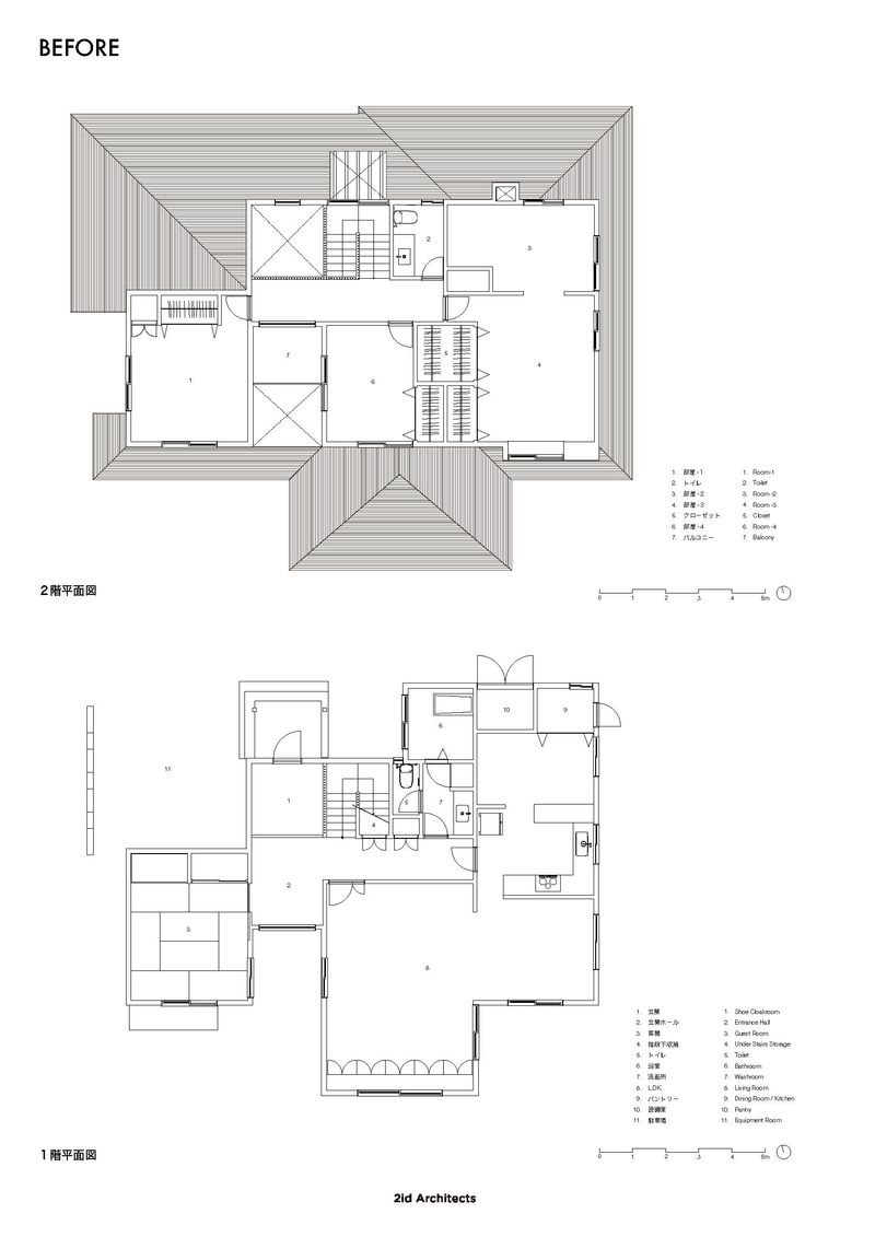
本プロジェクトは、葉山の豊かな自然に囲まれた築40年以上の戸建住宅を、現代の暮らしに寄り添う住まいへと再生したリノベーション計画である。 延床約190㎡というゆとりある広さと、堅固な既存建物の魅力を活かしながら、開放的で心地よい空間へと整えた。 外観は既存の屋根・外壁を極力継承しつつ、1階に焼杉調の板張りを採用し、白と黒の落ち着いたツートーンでまとめている。懐かしさと新しさが自然に溶け合い、葉山の風景にも馴染む佇まいとなっている。 計画の主題は「内外の連続性」と「自然との再接続」である。既存和室を撤去し、駐車スペースと庭への動線を再編することで、分断されていた外部環境が暮らしの中に自然と溶け込む構成とした。玄関ホールには庭へ向けた大開口を設け、テラスと床仕上げを連続させ、外壁材を内部へ引き込むことで、葉山らしい自然の気配が静かに広がるエントランス空間をつくり出している。 リビングでは、既存空間の一部を大胆に“屋外化”し、屋根のある半屋外テラスとして再構築した。屋根のある半屋外空間は、天候に左右されずに過ごせる居心地のよい場となり、室内・屋外・半屋外が緩やかに連続する豊かなグラデーションを生み出している。 また、横長の大開口から光や風、庭の緑が入り込み、季節の移ろいが日常の背景となる空間となっている。さらに空間に合わせて設計したオリジナルのソファが、全体に落ち着きを添えている。 内外の関係を再編し、自然と住まいが穏やかに響き合う“ゆとりある暮らし”を再生したリノベーションである。
