




補足資料

PROJECT MEMBER
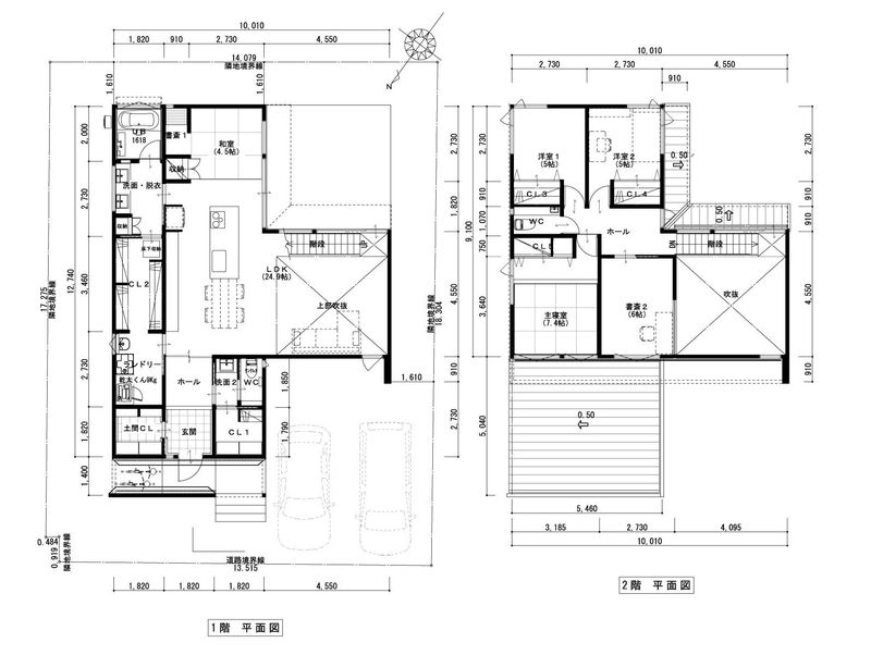
北向きの2階建てパッシブデザインハウス。水平ラインを意識したモダンなファサードとなっています。石目調のタイルと軒下・袖壁の木調サイディングがアクセントとなり、シンプルかつ洗練された外観デザインにまとまりました。玄関ポーチは軒が深く雨の日も快適に出入りできます。 玄関ホールには収納ボックスなど設けずにすっきりとした空間に。間仕切りながらもヌケ感を演出するガラスの引き戸の向こう側にはキッチン・ダイニング空間が見えます。 和室とつながる約30帖の大空間LDK。リビング上部の吹き抜けは約11帖。鉄骨階段が軽やかなアクセントになっています。冬は陽射しをたっぷり取り込み、夏は外部電動ブラインドヴァレーマで直射日光をコントロールします。 キッチン・ダイニング・和室の天井には木パネルを採用し、心地よい素材感を演出。アイランドキッチンはダイニングと横並びに配置され、料理をしながら家族との時間を楽しめます。キッチンの裏側にWIC・ランドリールーム・洗面脱衣室・浴室を配置。カップボードの左手と冷蔵庫の右手どちらからでも入れる回遊動線になっています。
TAGS
4

