




補足資料




PROJECT MEMBER
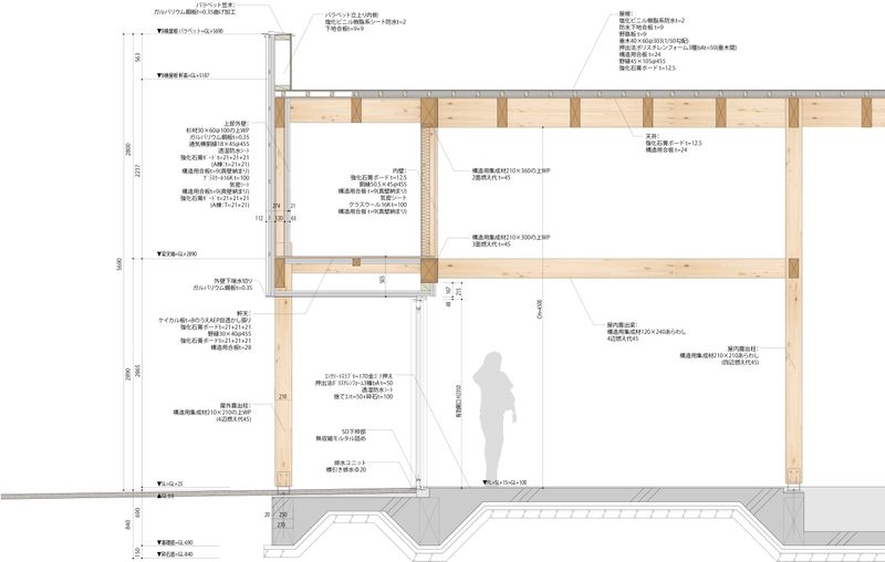
「MORI no KI TERRACE」は、築70年を超える広島県庁舎敷地内の未活用地を対象に、官民連携によって行政街区を市民に開かれた場へと再編する試みである。かつて来庁者用駐車場として使われていた場所を、芝生広場と木造平屋の商業施設へと転換し、役所という目的地型の場所を、日常的に立ち寄れる都市の居場所へと更新した。 計画にあたっては、県庁舎と同時期に整備された「県庁の森」の樹木を移植し、建物ボリュームを極力抑えながら、小道やピロティを介して街区全体の回遊性を高め、同時に県庁の森の再編整備を行った。都市の中に公園のような連続した外部空間を挿入することで、行政施設と市民生活の距離を縮める空間を創出した。また、こみちを芝生広場やピロティ空間につなぐことで、温暖な瀬戸内気候のもと屋外でのイベントや休憩、散策を楽しめる、広島の屋外文化を象徴する場となることを目指した。 一方で建築としては、こうした市民の活動を受け止める場であると同時に、事業期間の約20年という時間軸を見据えた計画が求められた。従来、防火地域における木造建築は構造躯体を耐火構造とする必要があったが、2019年の建築基準法改正により、燃え代設計による木造躯体の現しを可能とする延焼防止建築物として計画した。外壁や軒裏の耐火性能、開口率などの条件を満たすことで、屋内外において木のぬくもりを直接感じられる空間を実現している。また、解体の容易性や移築・建材再利用の可能性を高めるため、シンプルな接合部を特徴とするSE工法を採用した。 建物外壁の木ルーバーには県産木材を利用し、また、広島で生産・消費された牡蠣の殻を砕いて混ぜた外構舗装やコンクリートによるベンチ、植栽プランターなど、広島ならではのマテリアルを積極的に活用した。さらに、軒下空間の外壁には、広島県の工芸や産業を発信し、必要があれば購入ができるような展示スペースを設置した。広島県庁という広島の中心部にいながらも、広島県内各地の伝統や文化、自然との接点がうまれた。 公共施設の維持管理や更新が課題となる中、本計画は空間設計と運営を一体で捉え、行政と民間が相互に利益を共有する、持続可能な公共建築のプロトタイプである。

