
補足資料



PROJECT MEMBER
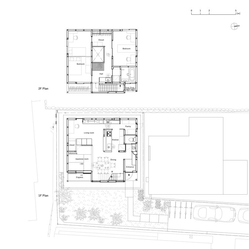
国や文化、年代の異なるどんな人の心も惹きつける住宅の姿を探り続けている。それは贅を尽くした煌びやかな豪邸でも、ミニマルなホワイトキューブでもないだろう。きっと、土地の空気に溶け込みながら、普遍的な美しさを湛えた時代を超えた住宅なのだと思う。 敷地は、昔ながらの日本家屋と現代的なメーカー住宅が入り混じる、時代の変遷の只中にある旗竿地。限られた予算の中で、この地に適した5人家族のための家を描くにあたり、私の頭の中には日本家屋の姿があった。真壁で軸組が現された、無駄を削ぎ落とした簡潔な佇まい。たとえ面積が小さくても、内と外、内と内が完全に隔てられていない透け感をもつ住宅であれば、窮屈さを感じずに暮らすことができるだろう。工事費が高騰し続ける今、永くこの国で育まれてきた住宅の姿を見つめ直すことこそ最適解であると信じ、設計を進めた。 建物は周囲の環境に馴染むよう、総2階建てに切妻屋根をかけたシンプルな形状とし、焼杉で仕上げた慎ましい外観とした。階高を抑えつつ構造を現し、2階床を1階天井と兼ねた杉板一枚とすることで、材料や工事を減らしながら開放感を確保している。建材は手に入りやすい一般的なものに限定し、工種が増える仕様を避け、大工の手で完結できるものを採用した。料理好きの夫婦のために台所と食事室を家の中心に据え、その周囲に生活の諸要素をコンパクトに散らしつつ、土地の低い東側に向けて大きな開口と縁側を設け、自然と意識が外へと向かう、家族5人が伸びやかに暮らせる住まいを目指した。 建主の要望、性能、コストといった住宅に求められる様々な条件を、日本家屋の意匠を現代的に解釈しながら、注意深く整えていった。和室では宙に浮いた押入れとささやかな床の間がソファと絡み合い、居間や食事室との境界を暈かす。地窓を塞ぐ板戸は、折り畳んで持ち手を天板の切り欠きに噛み合わせることで、テレビ台と一体造作のように収納できる。これは、日本建築に見られる、使うときだけ機能が立ち現れ、不要なときには空間や家具の一部として溶け込む可動性・兼用性から着想を得て考案したものだ。さらに、和室の障子では戸先に目隠し用の堅木を取り付けることで柱に絡む縦枠を省き、2階の引戸では柱梁そのものに鴨居や枠の役目を担わせ、枠を一部排除している。こうした操作により、軸組の独立性を際立たせ、真壁に通じる骨格の明快さを引き出している。 昨今、家を建てる際に、日本人だからといって和風の住宅を望む人は少ない。そして住宅から畳や床の間は姿を消し、閉じ切った家に住み、季節を愛でることも失われつつある。しかし、清潔な畳が放つ気配、畳縁や障子の桟の繊細な線が生む静謐な緊張感、障子を透過する柔らかな光と和紙に映る葉影が織りなす揺らぎ、内外の境を曖昧にしながら季節の風を家の中へと引き込む居心地の良い縁側⎯⎯そうした日本住宅のエレメントは、国や文化を越えて共有できる美しさを備えているのではないかと信じている。同時にまた、これらを絶やすことなく後世に残していきたいと思う。そのためにも、決して華美で懐古的なものではなく、素朴で簡素だけど機能的で美しい、一つの標準像としての庶民のためのニュートラルな日本の住まいをつくりたいと考えている。
