
補足資料








PROJECT MEMBER
DATA
- ビルディングタイプ
- パビリオン・イベントブース
- 構造
- 鉄骨造
- 工事種別
- 新築
- 延べ床面積
- 971.97㎡
- 竣工
- 2024-12
CREDIT
- 撮影
- 三嶋一路 / エスエス / 小野寺匠吾建築設計事務所
- 設計
- 株式会社小野寺匠吾建築設計事務所 / 鹿島建設・小野寺匠吾建築設計事務所グループ / yasuhirokaneda STRUCTURE / MOCHIDA建築設備設計一級建築士事務所 / EOS plus
- 担当者
- 小野寺匠吾 / 上原裕 / 河野祐輝 / 大平直子 / 持田正憲 / 高橋 翔 / 益田太平 / 黒田憲二
- 施工
- 鹿島建設株式会社
- 構造設計
- yasuhirokaneda STRUCTURE / 金田泰裕 / OK structure / 小沼研悟 / 鹿島建設・小野寺匠吾建築設計事務所グループ / 渕上陽介
- 屋外照明計画
- DAISUKI LIGHT / 大好真人 遠藤千尋
- 温熱環境デザイン
- henrik·innovation ApS / 蒔田 智則
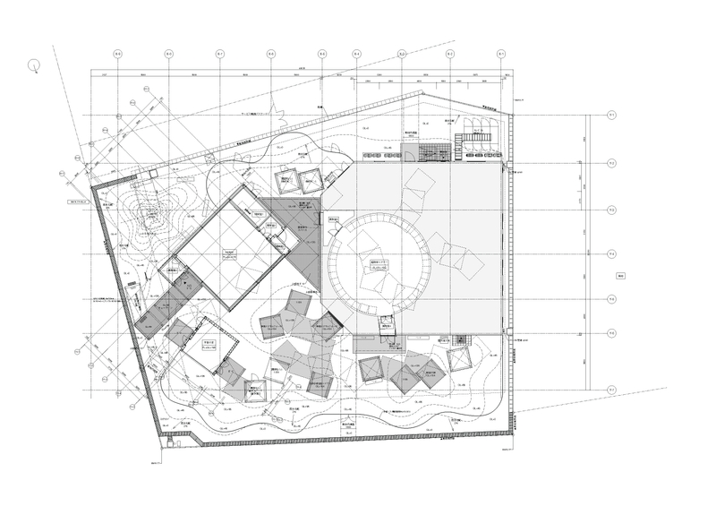
この建築は「いのちめぐる冒険」という2025 大阪・関西万博のシグネチャーパビリオンである(河森正治テーマ事業プロデューサー)。「Restorative Design Exploration=建築やデザインを通して地球環境を回復に向かわせるための探求」をレガシーに掲げ、「海」で広がる低環境負荷建築システムに挑戦している。建築とは単に「つくる」行為ではなく、社会と自然の中で循環していくプロセスであるという考えを、このパビリオンを通して可視化することに取り組んでいる。 セル(細胞)と呼ばれる方向性のない構造モジュールがパラパラと積み上げられ、多くの隙間や連なりを生み出すことで来館者が興味や探究心を持って中に入りたくなるような、海辺の岩礁のような建築をイメージした。セルは外形がない立体的なファサードをつくり出しているとも言える。このセルの鉄骨フレームは既存のコンテナ生産ラインを利用して製作できるディテールを考案することで、低コストかつ高効率なプレファブを実現した。セルは海運モジュールを踏襲し、2.4m立方の方向性のない構造体を最小単位としている。5つ連結することで40フィートのコンテナ船に積むことができるので、海運を利用して夢洲の隣の咲洲の港まで運ばれ、そこから敷地までの最短距離だけをトラックで輸送する計画とした。海運輸送、組み立て、解体、再輸送、リパーパスまでをひと続きのストーリーと見立ててデザインしている。 セルの外装は、大阪湾の海水で練ったHPC(ハイブリッドプレストレストコンクリート)というパネルで形成されている。HPCは鉄筋の代わりにカーボンワイヤーを使用しており、2年にわたって材料実験を重ね、一般的な真水でつくるコンクリートではなく、大阪湾の海水100%による海洋由来の革新的なコンクリートを開発した。真水の過剰消費という全世界的な課題に対し、真水を海水に置き換えるアイデアをパブリックスペースで実証したこと、また大阪湾の海水を使って大阪湾の上に建っていることによって、建築自らが、貴重な真水資源の保全へのメッセージを発信している。また、海水配合で得られた圧縮強度向上に伴う使用セメント量の削減によって、将来的にはCO2排出量の削減や蒸気養生の省略などが期待される。更には途上国の沿岸の都市整備、移設及びリユースにも耐え得る塩害に強い長寿命建材となり得るように、この万博という未来社会の実験場において、さまざまな期待に満ちた一歩を踏み出している。 海を渡って運ばれてきた構造体が、冒険心を誘う魅力的であいまいな建築空間を構成し、会期中に多くの人に利用され、会期後にまた海を渡って次の場所の新しい目的のために使われ続ける。このように、材料のリサイクルにとどまることなく、万博の持つレガシーやエネルギーも含めて、次の場所で未来に継承されるような美しいストーリーに向けて更なる計画を進めている。 This is one of the Signature pavilion of EXPO 2025 Osaka-Kansai, “LIVE EARTH JOURNEY” (Produced by Shoji Kawamori). The pavilion aims to develop the legacy of ‘Restorative design’ = restoring the environment through architecture, along with the exhibition content that richly expresses the theme, in the architectural design principles, construction process as well as the post-event uses, to present new possibilities for sustainable World Expo pavilions. Through the process, we aimed to create an architecture that is made from the resources of the sea by actively adopting existing shipping modules to increase efficiency in production, transport, construction, demolition and post-use, and by incorporating the active use of seawater in the concept of material development. Through these actions, we challenge the development of low environmental impact architectural systems that expand in the "sea", and by presenting a new architectural model that regenerates nature, we aim to physically realise the vision of a shift from a civilisation that degrades nature to one that restores it. After the event, the pavilion is being considered for a project to relocate it as part of an educational facility in Okinawa.
![小野寺匠吾建築設計事務所 [ Office Shogo Onodera / OSO / オソ ]](https://asset.tecture.jp/uploads/upload_image/image/541560/71c495c2-7c94-4ced-8fd5-b888d7ff824a.png?width=800)