
補足資料

PROJECT MEMBER
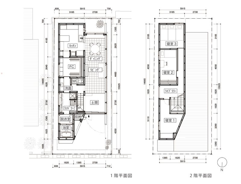
富山市の中心市街地から程近い位置に建つ、戸建て住宅の計画である。 建主家族は、本を読むのは図書館へ、コーヒーを飲むならコーヒーショップへなど、 『街を家の延長として使いたい』という、仕事でも街と関わられている建主らしい要望のもと設計がスタートし、「街」との関係をおおらかに優しく見守る屋根、「街」と生活の領域を調整する大きな扉、「街」の中で生活を守るための棲家が集合体としてひとつの形となった。 家の中で日常を完結するのではなく、外に出て街のコンテンツを楽しみ、またこの家から暮らしの一部を街に放っていく、街と息を合わせながら共に育まれる住宅を目指している。
