補足資料








PROJECT MEMBER
DATA
- ビルディングタイプ
- 共同住宅・集合住宅・寮
- 工事種別
- リノベーション
- 延べ床面積
- 91㎡
- 竣工
- 2025-04
CREDIT
- 撮影
- 楠瀬友将
- 設計
- イスナデザイン
- 担当者
- 一瀬健人 / 野口理沙子
- 施工
- ルーヴィス
- 設備設計
- ピロティ
- 不動産
- 創造系不動産
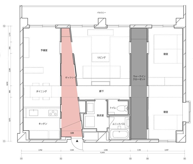
気が付けばまた絵の中に入っていた。 出てきた“私”は少し小さくなったような、周りの景色が違ってみえるような、、、 アートには“私”自身を揺さぶる力があるといつも感じています。 建築自体からそんな感覚を生むことができないでしょうか。「視覚・スケール・仕上」を切り口として「普段の暮らしの感覚」を揺さぶるような住宅を考えました。 □ アートのように住まうには アート収集家のご家族のためのマンションリノベーションです。150点を超えるアートコレクションを持つクライアントで、大型絵画から彫刻作品まで、生活をしながらアートを味わえる空間が求められました。「アートと共に住まうには」そして「アートの“ように”住まうには」という問いを立てて設計を進めました。 □ 日常と非日常の行き来する生活 そこで私たちは、空間を区切る壁を膨らませ、本来連続している“日常空間”を切るような赤と黒の空間を作りました。これらを“非日常空間”に見立てています。赤はギャラリー、黒はウォークインクローゼットとして使われます。日常と非日常を普段の生活の中で行き来することで、少しの違和感を感じながら暮らします。 □ 身体を揺さぶる視覚・スケール・仕上 “日常空間“は、白い壁・フローリング・整形の空間とし、赤と黒に対して、あえて一般的な造りとしています。対して、“非日常空間”は、左官を用いた斜めに狭まっていく3次曲面の赤い空間、1.1m×8mの極端に細長く黒い空間としています。日常空間と非日常空間を対比的に作ることで、“普段の暮らしの感覚”を揺さぶる場としています。 □ 虚と実のディテール 赤と黒の面は厚みを持たせず、壁面未満の存在としています。“非日常空間”のディテールは“ペラペラ”で厚みのないように見せる納まりとし、梁型や柱型のボリュームをそのまま見せる“日常空間”と対比的につくっています。 □ アートと日常をフラットに飾る額縁 絵の「額縁」をモチーフにした15の開口を取り、普段の生活をアート作品のように切り取りました。ここでは、アート作品と普段の生活がフラットに並びます。また、この開口を通り、赤と黒の空間を抜けることで、自身がアートの中に入るような体験を目指しました。
